Came motore per cancello a battente singolo, set con fotocellule
Contatto
Contatto
Per maggiori informazioni, contatta il nostro commerciale:
Descrizione
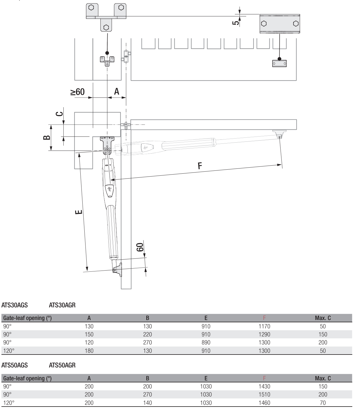
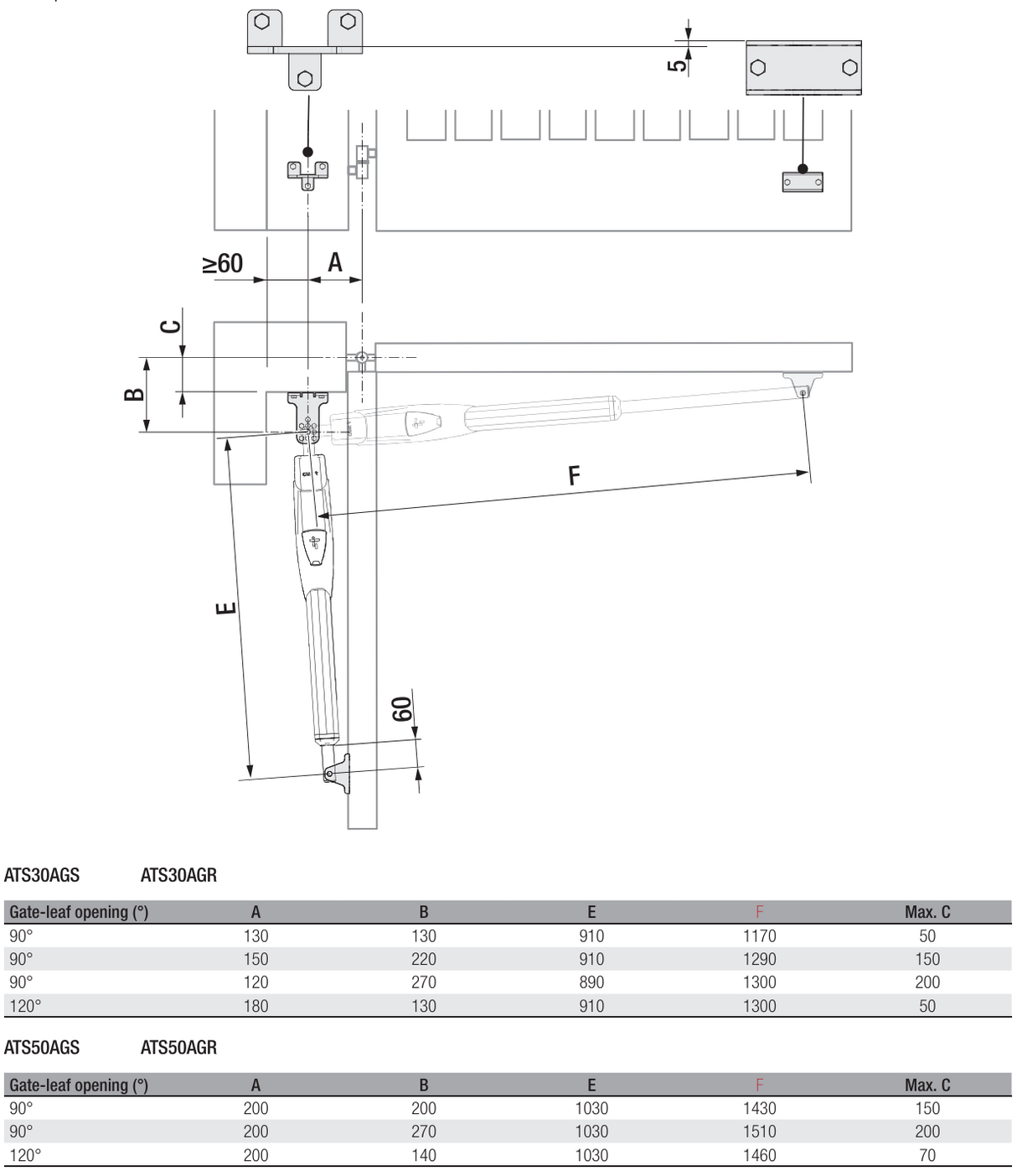
Parametri
Scarica
Parti del kit
CAME motore per cancelli a battente, 24 V DC ATS-50-DGS
Armadio con elettronica per cancello a doppia anta, 24 V DC ZL65
Scheda radio 433,9 MHz AF-43-S
Came TOP, Telecomando codice fisso, 2CH, CAME TOP-432-EE
Fotocellula per intonaco max. 10m DIR-10



