Came motore per cancello ad anta singola, set con fotocellule
Contatto
Contatto
Per maggiori informazioni, contatta il nostro commerciale:
Descrizione
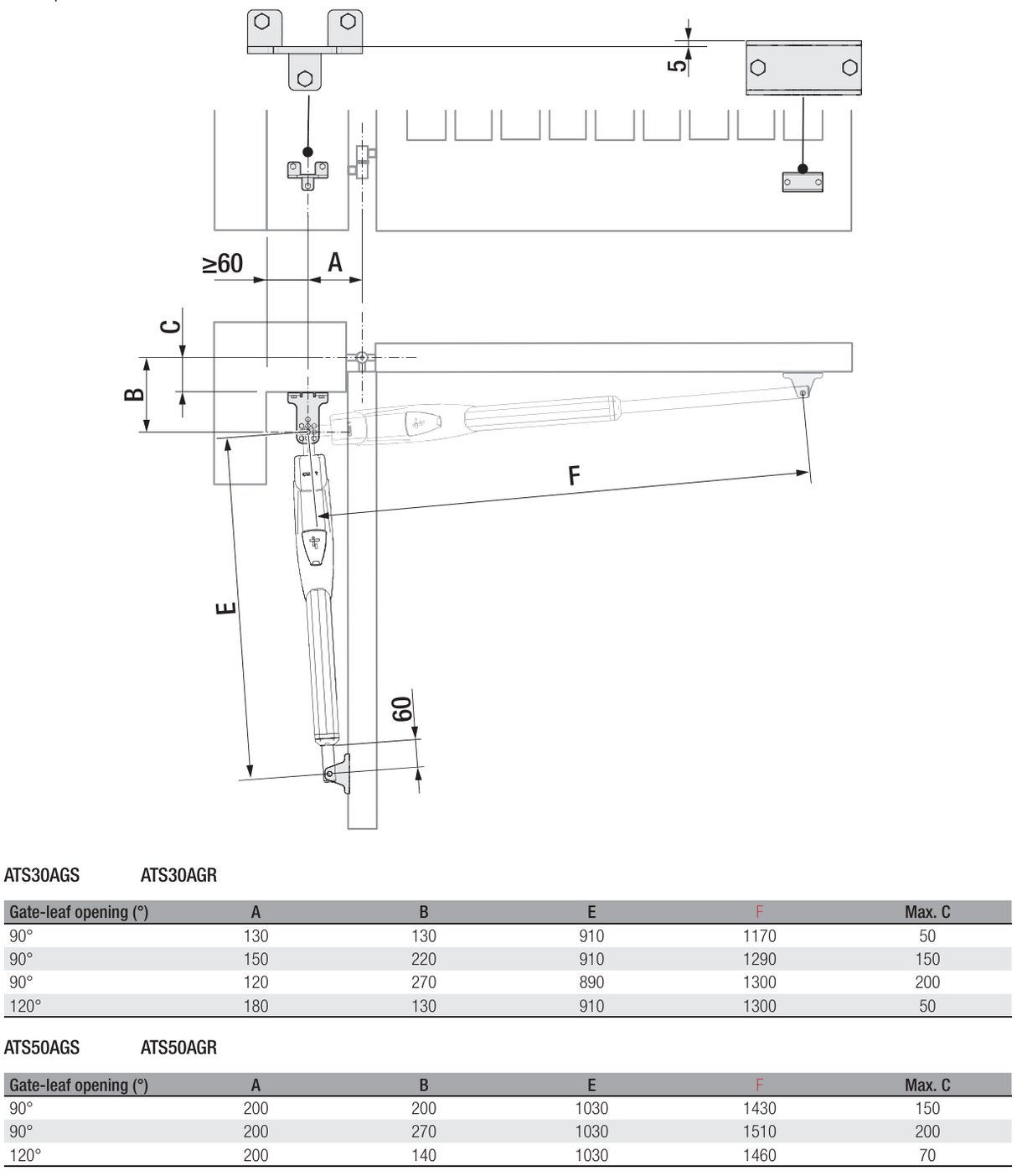
Parametri
Parti del kit
Automazione CAME per cancello a battente ATS-50-AGS
Armadio con elettronica per cancello a due ante - funzioni di base ZF-1N
Scheda radio 433,9 MHz AF-43-S
Came TOP, Telecomando codice fisso, 2CH, CAME TOP-432-EE
Fotocellula per intonaco max. 10m DIR-10


